Makléř: Vladislav Gerhard
Telefon: 603 577 ...
E-mail: vladisl ...
Zobrazit celý kontaktTelefon: 603 577 067
E-mail: vladislav.gerhard@rkevropa.cz
Nemovitost nabízí
EVROPA realitní kancelář
Václavské nám. 806/62, 110 00 Praha 1
Zobrazit kontakt na RK
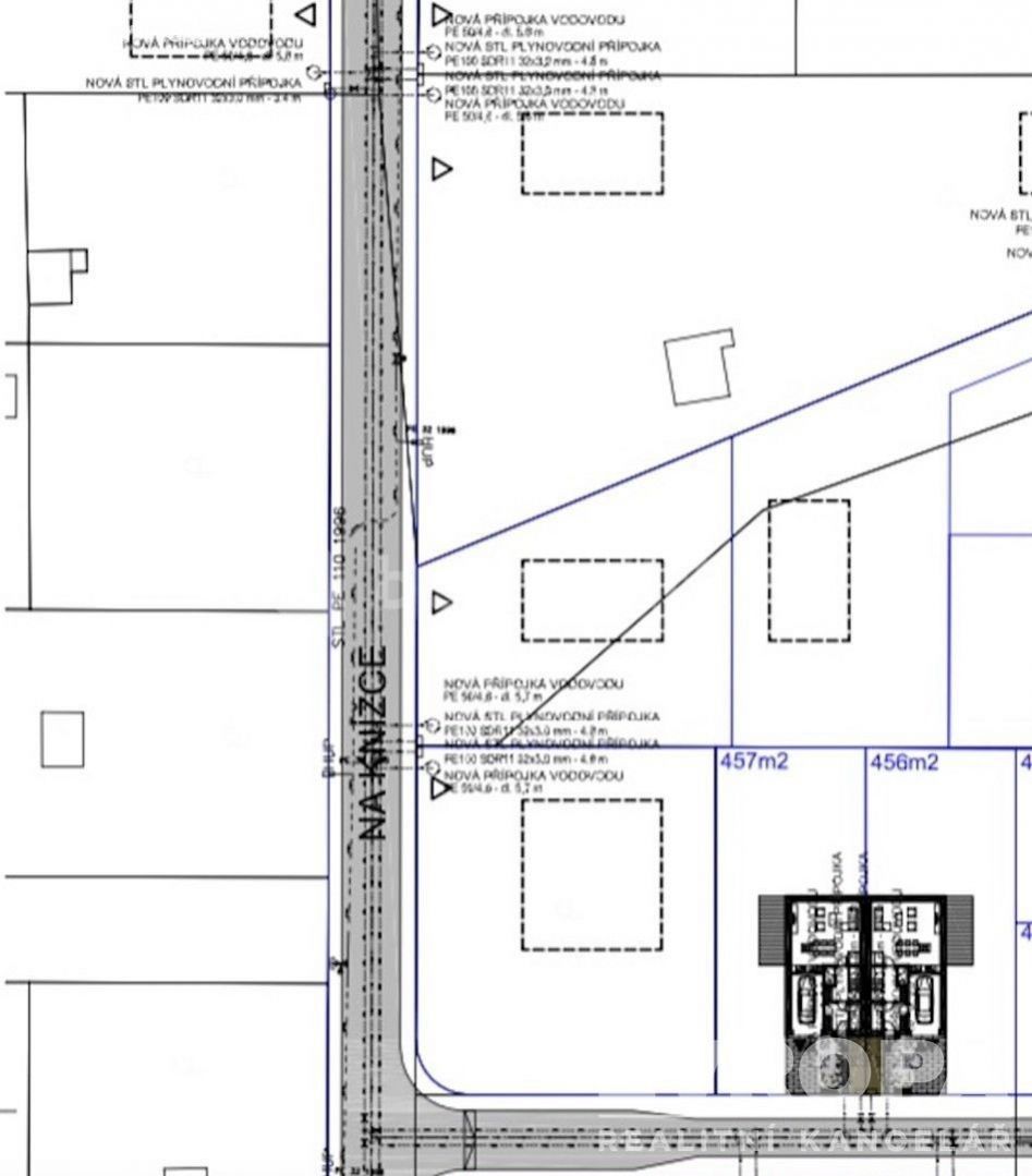
Prodej jedinečného stavebního pozemku v klidné lokalitě Kunratic vhodné pro rodinnou výstavbu. V bezprostředním dosahu veškerá městská vybavenost (obchodní a nákupní centra). Plné zasíťování pozemku proběhne společně s výstavbou nových komunikací do poloviny roku 2026. Ideální místo pro stavbu krásného rodinného domu viz.okolní pozemky a uzemní plán. Cena pozemku v čase rychle poroste, neváhejte a přijeďte se podívat, nádherné místo k bydlení. <a href="https://www.eurobydleni.cz/pozemky/stavebni-pozemek-bydleni/pardubice/obec-rokytno/prodej/"><strong>Prodej stavebního pozemku Rokytno</strong></a>
Prodej, Pozemek pro stavbu RD, bytů, Praha 4
Nabízíme k prodeji lukrativní stavební pozemek o výměře 389 m2, vhodný pro stavbu rodinné vily nebo bytového domku. Tento pozemek se nachází v klidné…
Pozemek se stavebním povolením na rodinný dům Praha Lipence
Pozemek o rozloze 1 275 m2 s platným stavebním povolením na výstavbu rodinného domu od renomované architektonické kanceláře včetně veškeré…
Prodej stavebního pozemku Praha 4, Kunratice na Eurobydleni.cz