Makléř: Petr Fišera, DiS.
Telefon: 777 598 ...
E-mail: petr@rk ...
Zobrazit celý kontaktTelefon: 777 598 669
E-mail: petr@rkgroup.cz
Nemovitost nabízí
RK Group realitní kancelář
K Dalejím 89/2, 152 00 Praha 5
Zobrazit kontakt na RK739 092 000
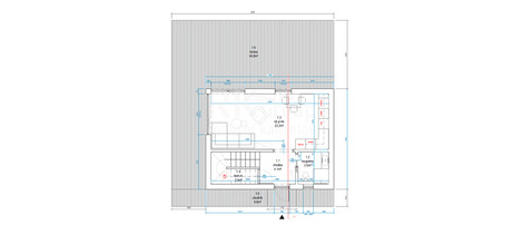
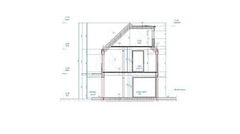
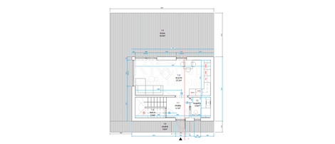
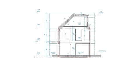
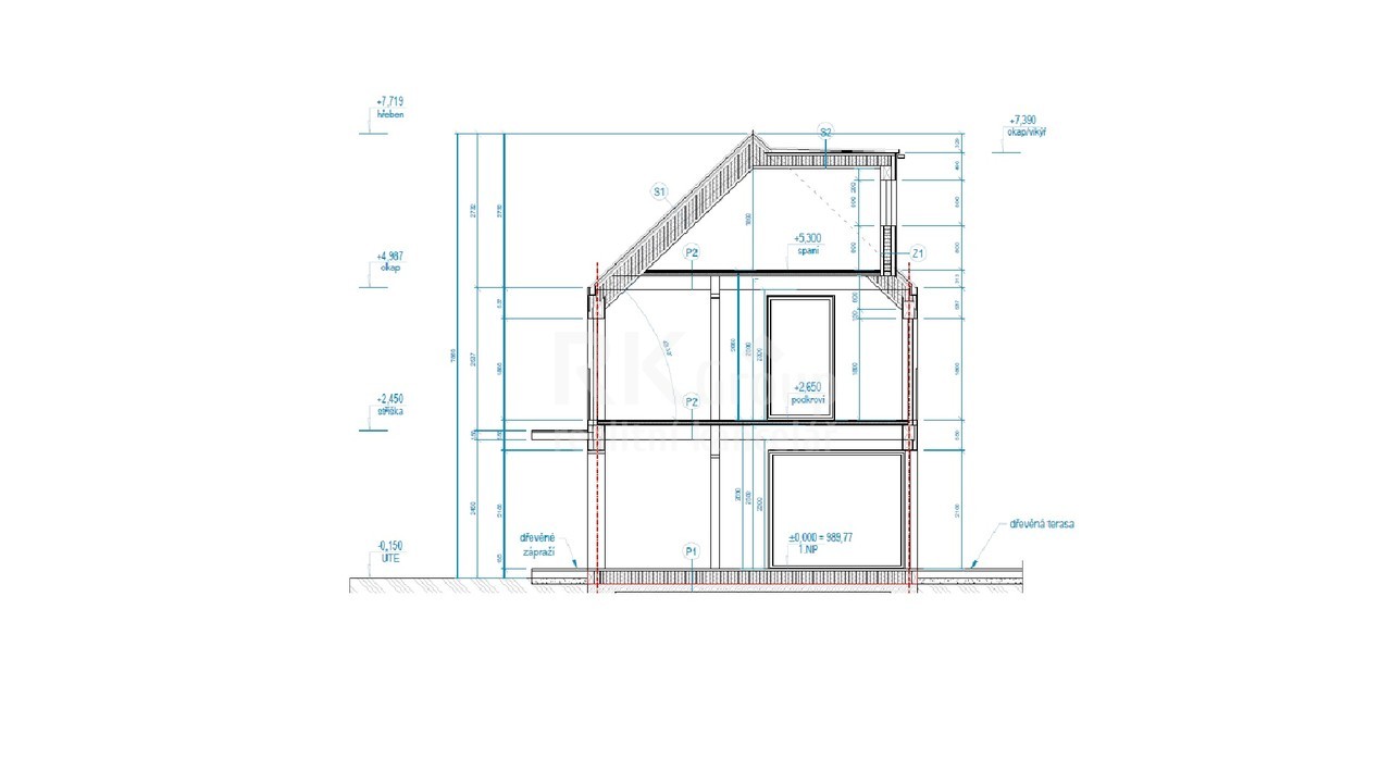
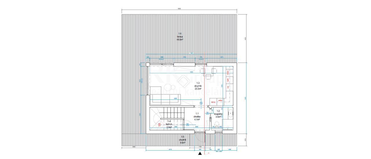
Dovoluji si Vám nabídnout stavební pozemek v krásné přírodě chatové osady ve Slivenci jen 15 min. od Anděla. Pozemek je k prodeji vč. kompletně zpracovaného projektu na rekonstrukci původní chaty na dřevostavbu se statusem rekreačního objektu. V okolí je většina staveb obdobných, určena a využívána k trvalému ceroročnímu bydlení. Navržená dřevostavba s plnohodnotnou dispozicí 3+kk a zastavěnou plochou 40 m2 (+ možnost terasy) má dvě obytná podlaží. Ve spodním podlaží je vstupní předsíň se schodištěm, koupelna se sprchovým koutem a toaletou a krásně prosklený obývací pokoj spojený s kuchyní a přímým vstupem na zahradu, nebo terasu. Z celého domu jsou krásné výhledy do zeleně. Ve druhém podlaží jsou dvě ložnice a komora, popř. druhá koupelna. Pozemek je mírně svažitý s kaskádou a unikátní tím, že přes něj ve spodní části teče potok Vrutice. V oblasti nehrozí z potoka záplava. Ve spodní části máme také navržené zahradní jezírko, napájené z místního pramene + je v ceně pozemku projekt studny s již vydaným stavebním povolením. Pozemek má bohaté vodní zdroje, kde krom místního povrchového pramene pitné vody (všechny okolní domy čerpají vodu z tohoto pramene) jsou zde vodohospodáři zjištěny i prameny spodní vody cca 8 m hluboko. Na pozemku je zavedena elektrika s možností rozšíření na 3x 25A. Pozemek se nachází cca 20 m od silnice u které lze parkovat - autem nelze zajet až na pozemek. Vstup na pozemek je po mírných přírodních schodech (obecní cesta) viz. přiložené fotografie. Doprava materiálu na stavbu lze i z druhé strany pozemku, kde cca 100 m od pozemku je místo, kam lze zajet i nákladním autem za účelem složení materiálu. Energgetická třída G je uvedena z důvodu toho, že nemáme zpracovaný energetický štítek. Nemovitost je v osobním vlastnictví bez jakýchkoliv právních vad či omezení. Pro bližší informace, či domluvení prohlídky mě neváhejte kontaktovat.
Prodej, Pozemek pro stavbu RD, bytů, Praha 5
Nabízíme ke koupi naprosto unikátní stavební pozemek o výměře 389 m2 s platným stavebním povolením a formálně zahájenou stavbou, umožňující realizaci…
Prodej pozemku, 38.977 m2, Praha - Petrovice
Ve výhradním zastoupení nabízíme k prodeji ucelený soubor pozemků o velikosti 38.977 m2, Praha - Petrovice. Soubor pozemků se nachází v centrální…