Makléř: Ondřej Chaloupka
Telefon: 605 220 ...
E-mail: ochalou ...
Zobrazit celý kontaktTelefon: 605 220 400
E-mail: ochaloupka@rkkotek.cz
Nemovitost nabízí
RK Kotek
Kutnohorská 31, Kolín
Zobrazit kontakt na RK724 526 658
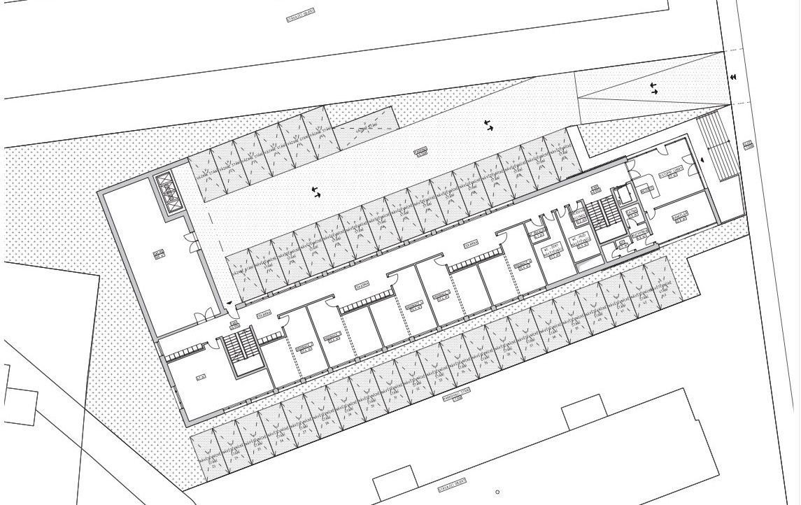
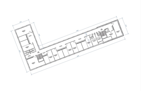
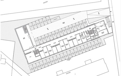
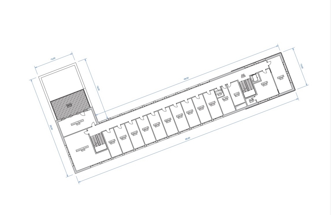
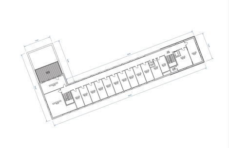
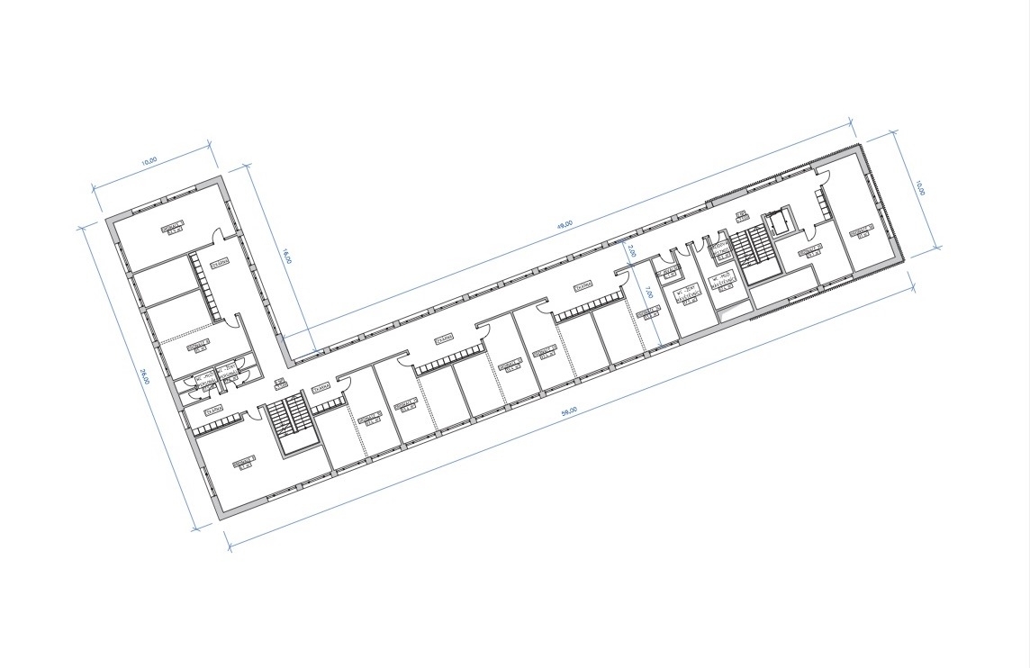
Nabízíme k prodeji atraktivní pozemek o výměře 2 661 m2, nacházející se v prestižní a vyhledávané lokalitě Praha 8 - Kobylisy, v ulici Pod Sídlištěm. Místo se vyznačuje klidným rezidenčním charakterem, výbornou dopravní dostupností a kompletní občanskou vybaveností. Dle platného Územního plánu hlavního města Prahy je pozemek veden v plochách VO - všeobecně obytné a BO - čistě obytné, což umožňuje využití pro rezidenční nebo občanskou výstavbu. Jedná se tak o mimořádně zajímavou investiční příležitost v lokalitě s dlouhodobě stabilizovaným prostředím a vysokým rozvojovým potenciálem. K pozemku je zpracována urbanisticko-architektonická studie, která navrhuje moderní ambulantní zdravotnické zařízení - funkci, po níž je v této části Prahy výrazná poptávka. Studie vznikla na základě konzultací s investorem, prohlídky na místě a odborných podkladů, včetně dat z katastru nemovitostí, Geoportálu Praha, platného územního plánu, Pražských stavebních předpisů a geodetického zaměření pozemku i okolí. Návrh je plně v souladu s územně plánovací dokumentací a respektuje požadavky na využití území i charakter okolní zástavby. Architektonické a hmotové řešení je koncipováno s důrazem na harmonické začlenění do prostředí a minimalizaci vizuálního dopadu. Hlavní vstup do objektu je situován do ulice Pod Sídlištěm, návrh zachovává měřítko okolní zástavby a přispívá k celkovému zlepšení kvality prostředí. Záměr naplňuje cíle územního plánování a požadavky Pražských stavebních předpisů včetně odstupových parametrů. Dispoziční řešení je navrženo s ohledem na funkční provoz, bezbariérový přístup a jasné oddělení pohybu pacientů a personálu. V přízemí se nachází vstupní lobby s recepcí, čekárnami, toaletami a základním zázemím. Vyšší podlaží jsou určena pro odborné ordinace, vyšetřovny a administrativní prostory. Studie umožňuje flexibilní přístup podle zvoleného scénáře výstavby - varianta A počítá se dvěma nadzemními podlažími a hrubou podlažní plochou cca 1 348 m2, varianta B se třemi nadzemními podlažími a plochou přibližně 2 086 m2. Součástí návrhu je také promyšlené řešení dopravy a parkování. Celkem je navrženo 27 parkovacích stání (8 vázaných a 19 návštěvnických), včetně míst pro osoby s omezenou schopností pohybu a stání pro sanitní vozidla. Parkovací plochy jsou umístěny na povrchu v rámci pozemku, částečně ve formě zatravněné dlažby. Pěší komunikace jsou odděleny od automobilového provozu a navazují na stávající chodníkovou síť. Venkovní úpravy doplňuje doprovodná zeleň a příjemný nástupní prostor pro pacienty i návštěvníky. Celkové řešení podporuje přehlednou orientaci, bezpečný pohyb a plynulý provoz objektu v běžném režimu. Díky své poloze, příznivému územnímu určení, připravené projektové studii a výborné dopravní dostupnosti představuje tento pozemek výjimečnou příležitost pro realizaci kvalitního projektu - ať už zdravotnického zařízení, nebo rezidenčního objektu - v jedné z nejatraktivnějších částí Prahy 8.
Na prodej investiční pozemek o rozloze 3.468 m2 v prestižní lokalitě Prahy 4 - Kunratice
V zastoupení majitelů nabízíme k prodeji pozemek o rozloze 3.468 m2 v Praze 4 Kunraticích, který se nachází v bezprostřední blízkosti zástavby…
Prodej exkluzivních pozemků 26.545 m, Praha - Točná
Prodej exkluzivních pozemků, Praha - Točná. Exkluzivně nabízíme soubor nádherných pozemků o celkové výměře 26 545 m, ohraničených vzrostlou…