Makléř: Ochotný Milan
Telefon: 233 371 ...
E-mail: ochotny ...
Zobrazit celý kontaktTelefon: 233 371 493, 777 001 517
E-mail: ochotny@rkdelfin.cz
Nemovitost nabízí
DELFIN
Bubenská 225/49, Praha - Holešovice
Zobrazit kontakt na RK233 371 493
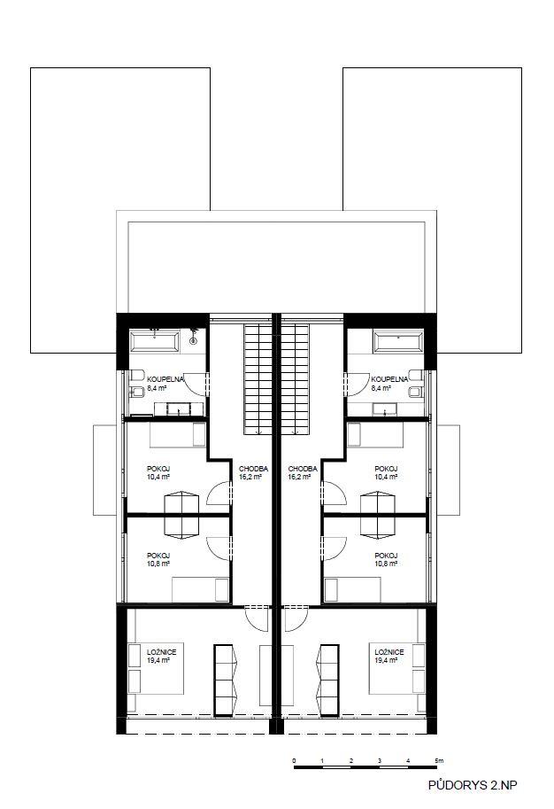
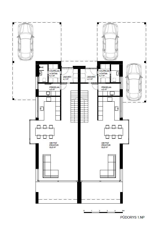
Unikátní příležitost na výstavbu moderního dvojdomu v prestižní části Prahy 4 Hodkovičkách, ulice Polední. Každý dům o dispozici 4+kk disponuje užitnou plochou 140 m2, terasou a až třemi parkovacími stání. Moderní pojetí zajišťuje obytný prostor s prosklenými stěnami , které zajišťují maximální propojení s venkovní pobytovou zahradou a západně orientovanou částečně krytou terasou. 1.NP prostorný obytný prostor s kuchyňským koutem, zádveří, šatna, koupelna, technická místnost 2.NP komfortní ložnice s šatnou, koupelna, 2x dětský pokoj Plocha zeleně, včetně pobytové terasy a zpevněných ploch je u severní části dvojdomu 398 m2, u jižní pak 351 m2. Současný stavební pozemek disponuje výměrou 957 m2 (29.500,- Kč/m2). Pozemek je rovinatý, na hranici zelené zalesněné části. Vlastní přípojka elektřiny, plynu, kanalizace a vodovodu. Na současný rodinný dům, který je na pozemku vystaven, je již vydán demoliční výměr (souhlas s odstraněním stavby). Pozemek je slunný, umístěný v klidné části obce , okolí tvoří zástavba rodinných domů. Situováno v nefrekventované ulici sloužící pro příjezd rezidentů. Hodkovičky jsou v rámci Prahy velmi zajímá a žádaná lokalita s kompletní občanskou vybaveností a perfektní dopravní dostupností. Je zde mnoho míst, kde se dají provozovat volnočasové a sportovní aktivity. V těsné blízkosti se nachází lesopark Hodkovičky, který lze využít k procházkám i cyklistickým výletům. Nemovitost je ideální pro ty, kteří chtějí mít centrum Prahy na dosah, disponovat prestižní adresou a zároveň být v blízkosti zeleně. Zastávka autobusu MHD 50 metrů od pozemku. Energetická třída G inzerovaného objektu je uvedena dočasně. Po dodání energetického štítku bude uvedena skutečná energetická třída této nemovitosti. <a href="https://www.eurobydleni.cz/byty/2_1/olomouc/obec-olomouc/pronajem/"><strong>Pronájem bytu 2+1 Olomouc</strong></a>
Nabízíme k prodeji rozsáhlý pozemek 1108 m2 pro bydlení, Točná, Praha
Nabízíme k prodeji prostornou stavební parcelu v atraktivní lokalitě Točná, ideální pro výstavbu rodinného domu nebo luxusní vily. Pozemek se nachází…
Prodej stavebního pozemku v Praze - Lipencích o výměře 972 m
Nabízíme k prodeji stavební pozemek o rozloze 972 m v atraktivní lokalitě Praha - Lipence. Pozemek je orientován na jih a nachází se na dominantním…
Prodej stavebního pozemku Praha 4, Hodkovičky na Eurobydleni.cz