Makléř: Ing. Tomáš Suntych
Telefon: 776 275 ...
E-mail: suntych ...
Zobrazit celý kontaktTelefon: 776 275 959
E-mail: suntych@dumrealit.cz
Nemovitost nabízí
Dumrealit.cz
Svornosti 8, 150 00 Praha 5
Zobrazit kontakt na RK
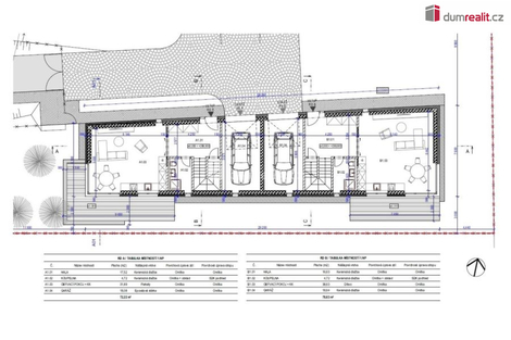
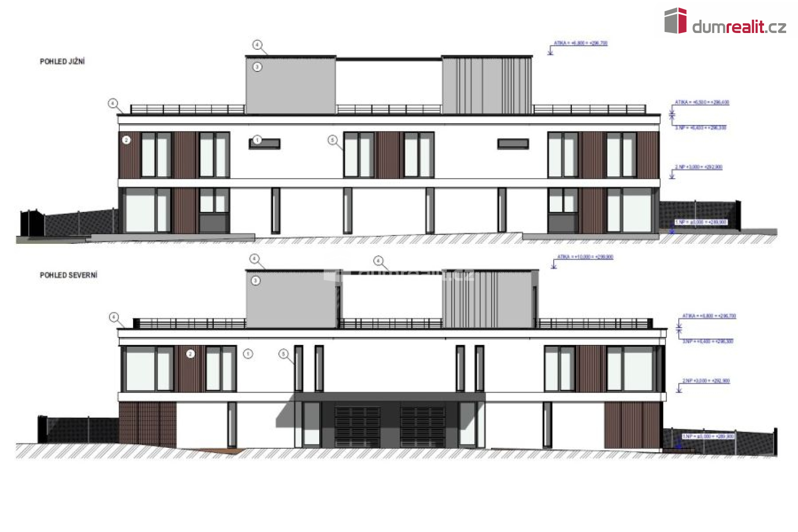
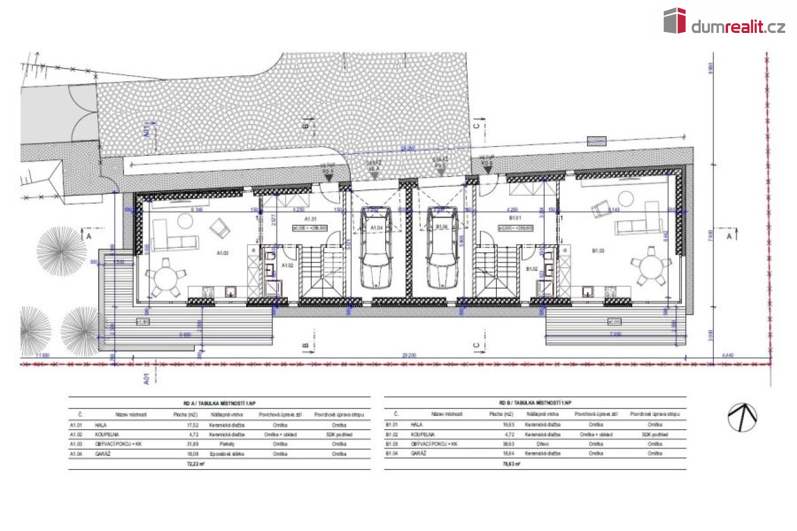
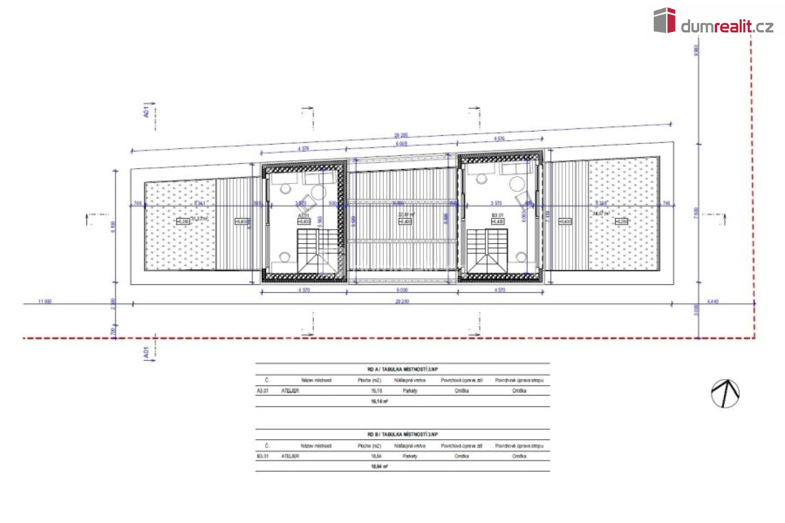
Dumrealit.cz Vám zprostředkuje koupi rovinatého stavebního pozemku plochy 909m2 určeného pro výstavbu dvojdomu o užitné ploše 333,5m2, se sklepními prostory 166,1m2 a střešními terasami plochy 102,2m2. Pozemek je obdélníkového tvaru s plánovaným vjezdem z ulice Davídkova, Praha 8. Nachází se na kopci v místě, kde svah pozvolna přechází do roviny. Na výstavbu dvojdomu již bylo v roce 2025 vydáno územní rozhodnutí. Směrově je situován zejména na jih a sever. Dům "A" má užitnou plochu 159,0m2, plus sklepní prostory 78,8m2 a střešní terasy 47,7m2. Dům "B" má užitnou plochu 174,5m2, plus sklepní prostory 87,3m2 a střešní terasy 54,5m2. Jedná se vždy o dvě obytná nadzemní podlaží a střešní ateliér se dvěma terasami pro každý dům. V 1. NP se nachází hala, koupelna a obývací pokoj s kuchyňským koutem, dále garáž. Ve 2. NP se nachází tři ložnice a prostornější koupelna. Ve 3. NP se nachází střešní ateliér se vstupy na dvě terasy, z nichž bude krásný výhled na Prahu. V celé ploše půdorysu domu je podzemní podlaží s výškou stropu 2,55m se širokým potenciálem využití na kanceláře, skladové prostory, tělocvičnu, posilovnu, herny apod.. V rámci přípravy stavby již byly realizovány přípojky vody, kanalizace a plynu. Vjezd na pozemek je projektován z ulice Davídkova. Pozemek navazuje na zástavbu prvorepublikových rodinných domů. V sousedství se mimo jiné nachází hotel Mazanka ve vlastnictví Akademie věd ČR. V blízkosti je veškerá občanská vybavenost. V docházkové vzdálenosti nákupní centrum Ládví se supermarketem a mnoha obchody, stanice metra, tramvají a autobusů. Na procházky je vhodný Přírodní park Okrouhlík nebo nedaleký Ďáblický háj. Autem lze v krátkých časových intervalech dojet po celé Praze či využít tunelu Blanka se spojením na důležité výpadovky z Prahy. Lokalitu lze považovat za širší centrum Prahy. Pozemek je situovaný na náhorní plošině s atraktivním výhledem. Součástí prodeje je předání výkresové dokumentace objektu pro územní rozhodnutí včetně již vydaného územního rozhodnutí s nabytím právní moci. Pro další informace neváhejte kontaktovat makléře. Ev. číslo: 653233. Energetický štítek: B
Stavební pozemek s platným stavebním povolením na dva luxusní rodinné domy.
Exkluzivně nabízíme stavební pozemek s platným stavebním povolením na dvě luxusní vily. První o výměře 377 m2, druhá 225 m2. Rozmístění je znázorněno…
Prodej, Pozemky pro bydlení, 1987 m2 - Praha 10 - Dubeč
Nabízíme Vám exkluzivně k prodeji pozemek s chatou o rozloze 1987 m2 v Praze 10 Dubči v místní lokalitě Slatiny. Z inženýrských sítí je zde elektřina…