Makléř: Roman Kučera
Telefon: 222 703 ...
E-mail: roman.k ...
Zobrazit celý kontaktTelefon: 222 703 245
E-mail: roman.kucera@sklady.cz
Nemovitost nabízí
Marion management
Za Sedmidomky 15, 101 00 Praha
Zobrazit kontakt na RK222 703 245
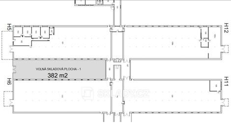
Nabízíme k pronájmu komerční pozemek v areálu Horní Počernice. Velmi dobrá dostupnost ze všech hlavních směrů. Nachází se nedaleko dálnice D11, exit 8 - Jirny, pouhých 20 minut do centra Prahy. Zastávka MHD před areálem, metro Černý most cca 10 min. autobusem. K pronájmu od 02/2026 je oplocená zpevněná venkovní plocha o výměře: 382 m2 Lze skladovat materiál nebo využívat jako parkoviště. Ostraha 24/7. Ostraha areálu 24hod Osvětlení Příjezd pro kamiony Zastávka MHD (autobus) před areálem Pro více informací nás kontaktujte. Neplatíte provizi. <a href="https://www.eurobydleni.cz/domy/rodinny-dum/melnik/obec-kojetice/prodej/"><strong>Prodej rodinného domu Kojetice</strong></a>
Pronájem, Pozemek pro komerční využití, Praha 9
Nabízíme k pronájmu pozemek o velikosti 35 m2 ve vyhledávané oblasti Vysočany - Praha 9, ul. Pod Balkánem. Možnost pronajmout až 3 parkovací stání.…
Pronájem zpevněné plochy 1000 m2 vhodné jako parkoviště, Praha 9 - Běchovice
Nabízím k pronájmu oplocenou odstavnou plochu v komerčním areálu v Praze 9 - Běchovicích, Podnikatelská ul. Přístup 24 hod. denně, vjezd na dálkové…
Pronájem komerčního pozemku Praha 9, Horní Počernice na Eurobydleni.cz