Makléř: Choc Marek
Telefon: 296 399 ...
E-mail: info@mm ...
Zobrazit celý kontaktTelefon: 296 399 006
E-mail: info@mmreality.cz
Nemovitost nabízí
M&M reality holding a.s.
Krakovská 1675/2, 110 00 Praha 1
Zobrazit kontakt na RK800 100 446
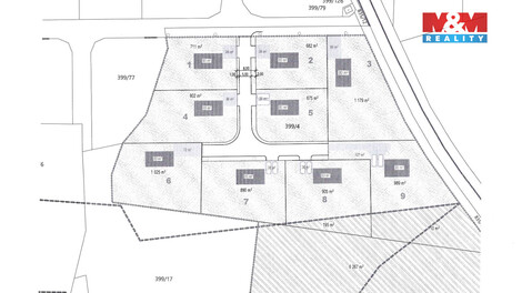
Prodej souboru pozemků o celkové výměře 15 939 m2, z nichž 9 675 m2 tvoří stavební část dle územního plánu pro nízkopodlažní rezidenční zástavbu — to je příležitost, která se v hranicích Prahy objevuje výjimečně. Lokalita Praha - Točná nabízí klid vilové čtvrti na jižním okraji hlavního města s přímým autobusovým spojením do centra. Infrastruktura je připravena nadstandardně: voda, kanalizace i elektřina jsou přivedeny na pozemek ve dvou přípojkách každá, nová asfaltová komunikace s veřejným osvětlením hotová. Projekt počítá s rozdělením až na 9 samostatných stavebních parcel o výměře 675 až 1 179 m2 — ideální základ pro developera, investora i skupinu, která chce stavět společně. Dolní Břežany se vší občanskou vybaveností leží za humny, přírodní rezervace Šance a lesy podél Vltavy přímo za plotem. Veškerá dokumentace potřebná k realizaci projektu je k dispozici a zájemcům bude poskytnuta na vyžádání.
Prodej stavebního pozemku na Zličíně, Praha
Nabízíme k prodeji atraktivní pozemek o celkové výměře 1 647 m2 v klidné části Prahy 5 - Zličín, ulice Hrozenkovská. Pozemek se nachází v převážně…
Prodej stavebního pozemku 931 m2 Praha Suchdol
Nabízíme vám k prodeji stavební rovinatý pozemek o rozloze 931m2, který se nachází v klidné přírodní lokalitě Praha-Suchdol. Součástí prodeje je…